Loading...
Commercial projects

Kantor PT. Mega Armada Sudeco

Kantor PT. Mega Armada Sudeco | Bekasi | 2025

Lokasi: Jatiasih, Bekasi

Tahun: 2025

Built Area: 500 m2

Status: On-progress

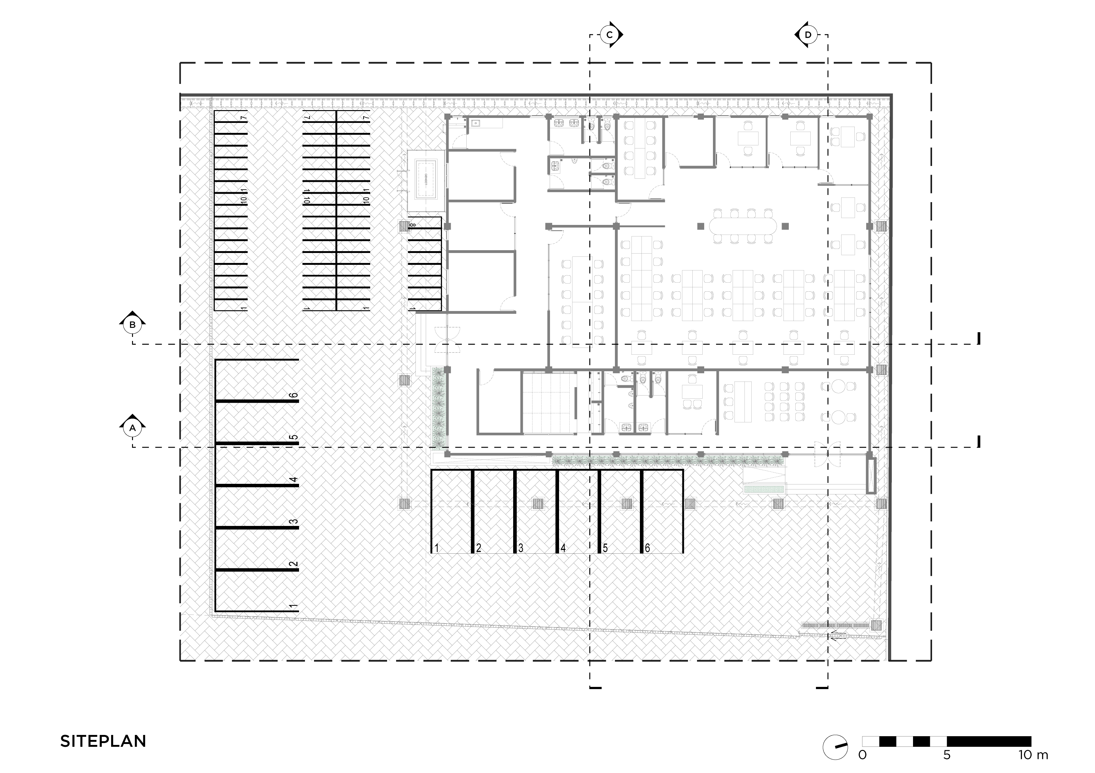
PT Mega Armada Sudeco merupakan perusahaan yang bergerak dalam bidang pelelangan dengan nama Tunas Auction. Area eksisting yang berlokasi di Jatiasih, Bekasi saat ini merupakan area lahan parkir barang lelang sekaligus area pelaksanaan pelelangan. Tim building pihak PT. MAS telah menyediakan basic design yang kemudian kami kembangkan menjadi gambar Detail Engineering Design (DED). Bangunan yang direncanakan mencakup fasilitas kantor operasional, area pelayanan pelanggan, serta fasilitas pelengkap berupa toilet, musholla, dan area parkir untuk motor dan mobil.

Pada tampak bangunan didominasi penutup cladding dari material ACP yang coba disusun secara acak dengan coba memainkan kesan memudar dimulai pada sisi kiri bangunan lalu stagnan di sisi kanan bangunan, karena pada sisi kanan fasad ACP berperan menjadi latar untuk logo identitas korporat.

PT. Mega Armada Sudeco is a company operating in the auction business under the name “Tunas Auction”. The existing area located in Jatiasih, Bekasi currently functions as both the parking lot for auctioned goods as well as the venue for auction activities. The building team of PT. MAS has provided the basic design, which we further developed into Detailed Engineering Design (DED) drawings. The proposed building includes operational office facilities, a customer service area, and supporting amenities such as restrooms, a prayer room, and parking areas for cars and motorcycles.

The building's appearance is dominated by ACP cladding material that has been arranged randomly to create a fading effect starting on the left side of the building and ending on the right side, as the ACP facade on the right side serves as the backdrop for the corporate logo.

Tunas Arsitek Mahakarya