Loading...
Public Space projects

KCI TUGU YOGYAKARTA

KCI TUGU YOGYAKARTA | Yogyakarta | 2024

Lokasi: Stasiun Tugu Yogyakarta, Yogyakarta

Tahun: 2024

Site Area: 818 m2

Built Area: 660 m2

Status: On-going construction

Stasiun Tugu Yogyakarta adalah stasiun besar yang terletak di jantung Daerah Istimewa Yogyakarta. Peresmian trayek baru KRL Jogja-Solo pada tahun 2021 berkontribusi pada peningkatan volume penumpang pada setiap tahunnya Hal ini membuat stasiun Tugu Yogyakarta perlu menyediakan infrastruktur guna melayani dan memberikan kenyamanan penumpang secara maksimal. PT Kereta Commuter Indonesia (KCI) menyediakan basic design pengembangan area pengendapan dan akses penghubung ke area ticketing Commuter Line Stasiun Tugu Yogyakarta yang kemudian kami kembangkan lebih lanjut untuk pembuatan Detail Engineering Design (DED). Proses renovasi pengembangan hall baru KRL Commuter Line ini baru dilaksanakan pada penghujung tahun 2024.

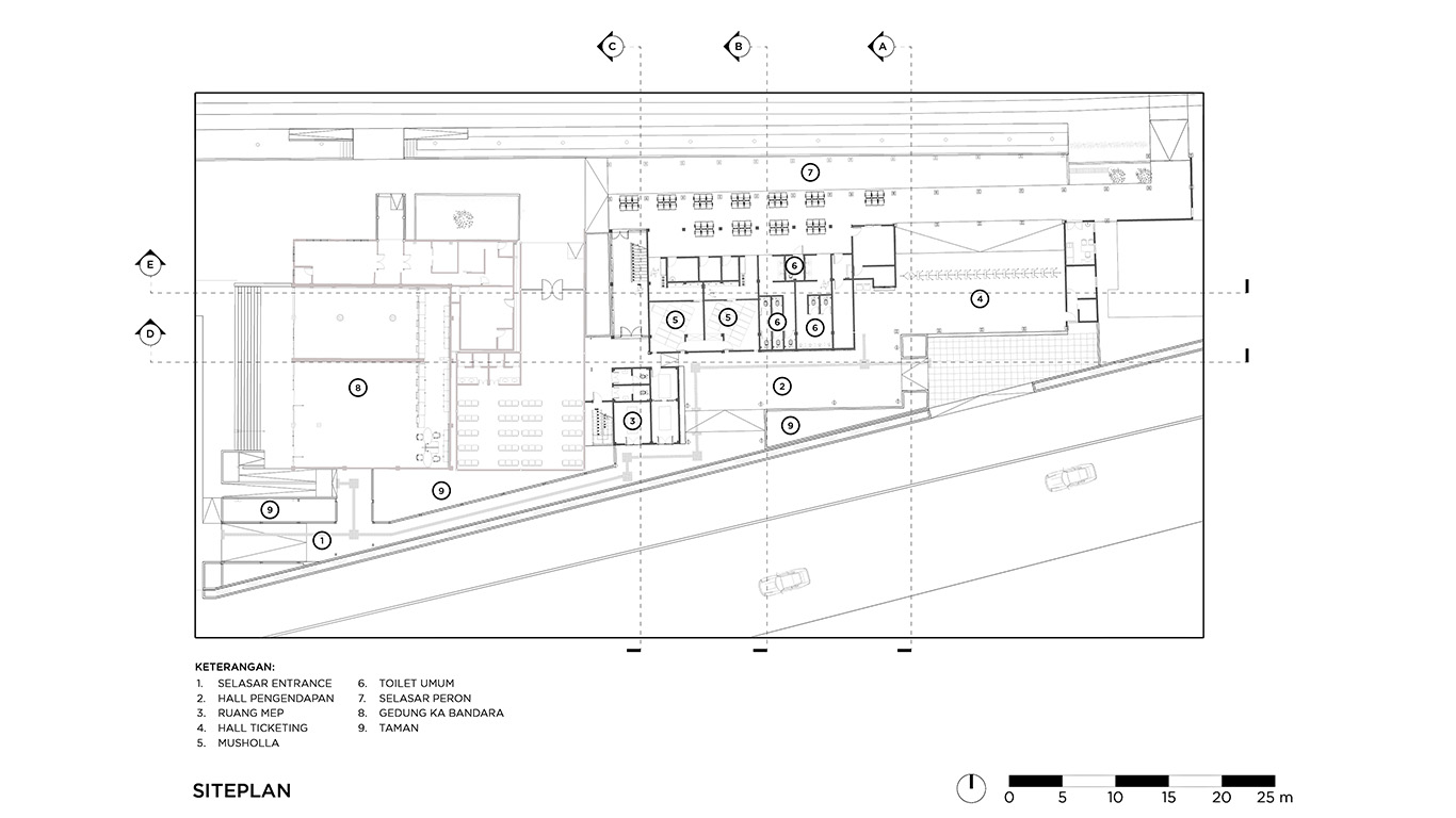
Bangunan baru berbentuk naungan kanopi yang massif Commuter Line Stasiun Tugu Yogyakarta terletak di sisi timur gedung KAI Bandara. Bangunan baru ini berdekatan dengan area utama hall ticketing KCI, yang masuk dalam zona 3 dan difungsikan sebagai area pengendapan penumpang sebelum memasuki zona 2 atau ke dalam area setelah ticketing. Selain bangunan kanopi untuk pengendapan penumpang ada juga akses penghubung yang di mulai dari sisi barat atau di area pintu masuk utama ke Stasiun Tugu Yogyakarta ke arah timur menuju hall ticketing KCI yang juga dinaungi kanopi guna memberikan kenyamanan dan kemudahan secara aksesbilitas interkoneksi bagi calon penumpang.

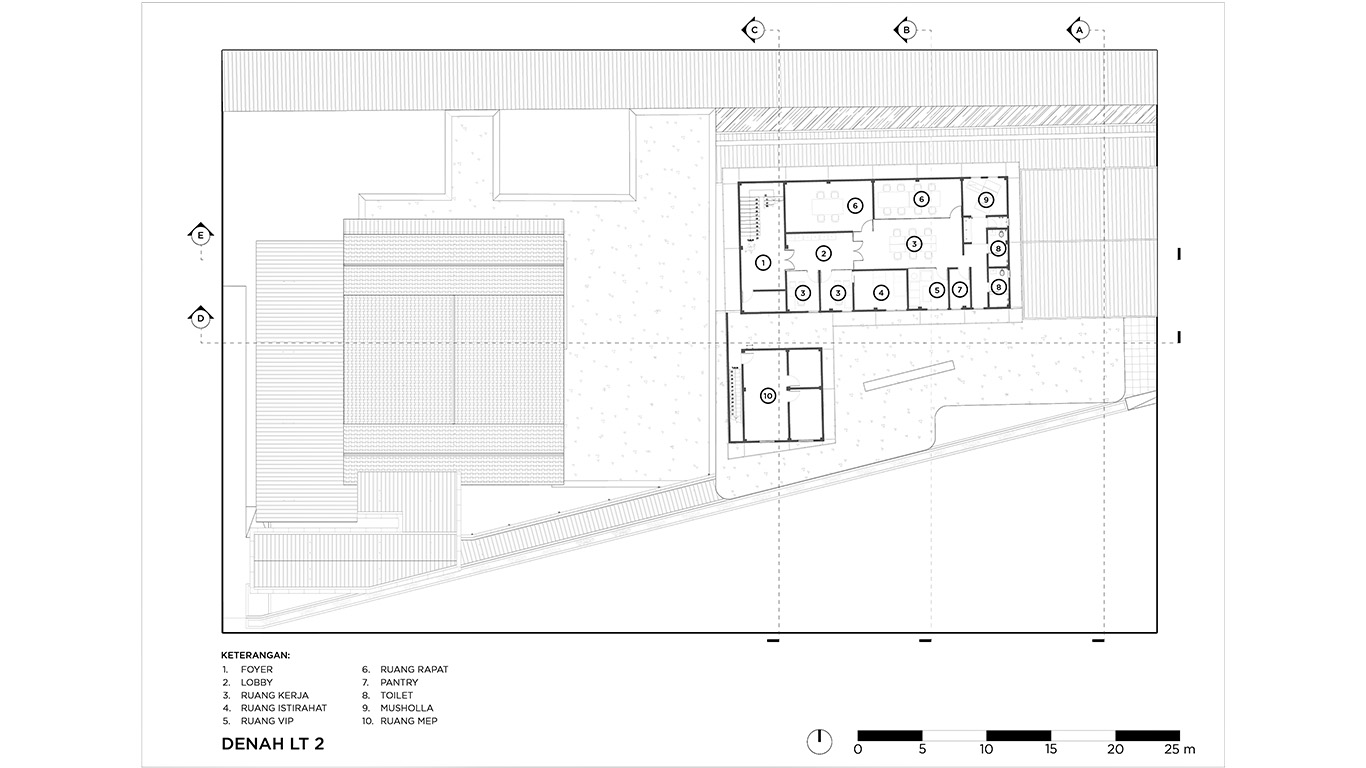
Selain area zona 3 atau area umum yang dapat diakses calon penumpang, pada pekerjaan ini kami juga diminta untuk melengkapi infrastruktur di area zona 2 atau area khusus yang hanya dapat diakses oleh calon penumpang/penumpang yang akan berangkat. Seperti halnya pengadaan fasilitas sarana prasarana kanopi ruang tunggu, toilet umum, toilet difable, mushola dan kantor pendukung operasional.

Sedangkan untuk olah ragam hias yang menyelemuti muka bangunan baru mengambil pola dari motif batik Kawung yang diaplikasikan ke material Aluminium Composit Panel. Hal ini diharapkan dapat mempertegas karakter bangunan dalam merespon nilai lokalitas yang cukup kental dan menjadi nilai tambah bagi citra kawasan.

Tugu Yogyakarta Station is a major station located in the heart of the Special Region of Yogyakarta. The inauguration of the new Jogja-Solo KRL route in 2021 has contributed to an increase in passenger volume each year. This has made it necessary for Tugu Yogyakarta Station to provide infrastructure to serve and provide maximum comfort to passengers. PT Kereta Commuter Indonesia (KCI) provided the basic design for the development of the holding area and access to the Commuter Line ticketing area at Tugu Yogyakarta Station, which we then further developed into a Detailed Engineering Design (DED). The renovation process for the new KRL Commuter Line hall will be carried out at the end of 2024.

The new massive canopy-shaped building of the Commuter Line Tugu Yogyakarta Station is located on the east side of the KAI Airport building. This new building is adjacent to the main KCI ticketing hall area, which is included in zone 3 and functions as a passenger holding area before entering zone 2 or the area after ticketing. In addition to the canopy building for passenger holding, there is also a connecting access that starts from the west side or the main entrance area to Tugu Yogyakarta Station towards the east leading to the KCI ticketing hall, which is also covered by a canopy to provide comfort and ease of interconnectivity for prospective passengers.

In addition to zone 3 or public areas that are accessible to prospective passengers, in this project we were also asked to complete infrastructure in zone 2 or special areas that are only accessible to prospective passengers/passengers who are about to depart. This includes the provision of facilities such as a canopy for the waiting room, public toilets, toilets for people with disabilities, a prayer room, and operational support offices.

Meanwhile, the decorative elements covering the facade of the new building take their pattern from the Kawung batik motif, which is applied to aluminum composite panels. This is expected to emphasize the character of the building in response to the strong local values and add value to the image of the area.

Tunas Arsitek Mahakarya