Loading...
Residential projects

Rumah Populis 3

Rumah Populis 3 | Tangerang Selatan | 2024

Lokasi: Cluster Populis 3, Tangerang Selatan

Tahun: 2024

Site Area: 217 m2

Built Area: 236 m2

Status: Finished

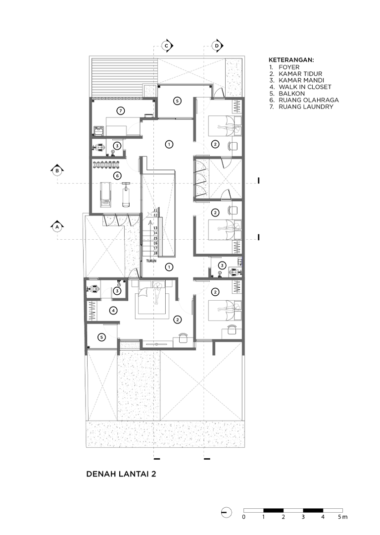
Desain rumah dengan pendekatan prinsip tropicality ini berawal dari merenovasi rumah lama yang didiami oleh keluarga besar dengan anggota keluarga yang cukup banyak. Berdiri di lahan seluas kurang lebih 217 m2 dengan kebutuhan ruang utama yang cukup signifikan terutama untuk kamar tidur yang jumlahnya mencapai 6 kamar, maka menambah lantai menjadi 2 lantai untuk memenuhinya, hal ini juga memberikan keuntungan agar kepadatan fungsi ruang di lantai 1 dapat terurai, selain itu juga memberikan kesempatan membuat area terbuka di bagian dalam untuk mengoptimalkan sirkulasi udara dan cahaya. Startegi membuat void di dalam bangunan berguna untuk memecah kepadatan massa bangunan akibat dari program ruang yang banyak.

Rancangan pada tampak depan bangunan didominasi bidang dinding masif yang ditutup dengan finishing bata tempel warna terakota hal demikian dimaksudkan untuk mereduksi paparan sinar matahari langsung ke dalam bangunan karena rumah ini menghadap ke sisi Barat. Sedangkan di sisi Utara yang berbatasan dengan lahan kosong coba dioptimalkan untuk menempatkan bukaan jendela. Lalu di sisi Selatan yang sudah berbatasan dengan rumah tetangga masih coba dieksplorasi dengan membuat inner court berupa taman kering.

Nilai personal pada rumah ini terletak pada beberapa detail kecil yang coba dimasukan pada elemen interior. Karena profil penghuni rumah yang punya kebiasaan membaca dan mengkoleksi banyak buku maka sebagai usaha untuk memberikan sentuhan personal kami menambahkan beberapa rak buku sekaligus berfungsi sebagai railing tangga di lantai 2.

Tunas Arsitek Mahakarya