Loading...
Factory projects

Warehouse PT. JJ-LAPP Indonesia

Warehouse PT. JJ-LAPP Indonesia | Tangerang | 2023

Lokasi: Kabupaten Tangerang

Tahun: 2023

Site Area: 6349 m2

Built Area: 3780 m2

Status: Finished

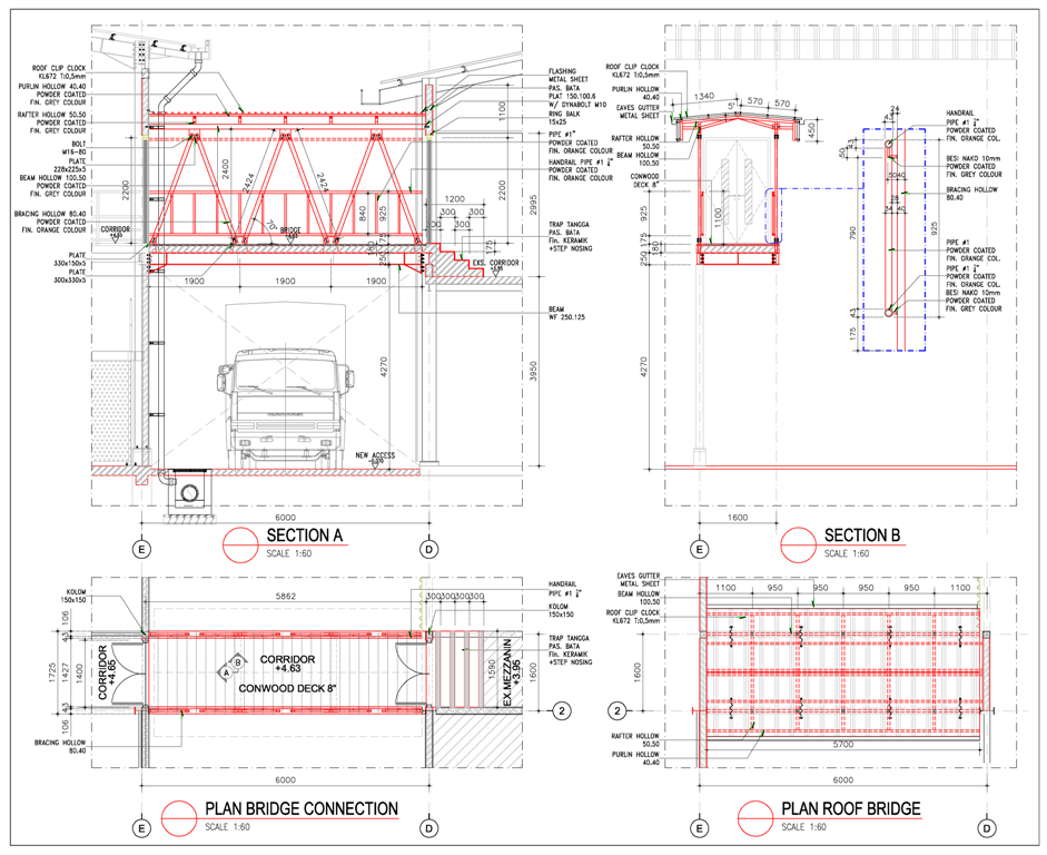
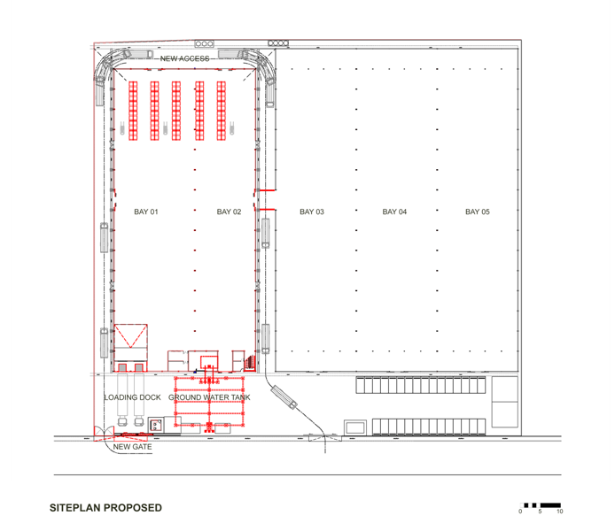
PT. JJ-LAPP Cable Indonesia merupakan perusahaan joint venture antara Jebsen & Jessen Group dan LAPP Holding Asia, menyediakan solusi perihal kabel dan jaringan konektivitas yang dirancang insinyur Jerman lalu disesuaikan dengan kebutuhan industri di Indonesia. Proyek pembangunan kembali gudang PT. JJ-LAPP Cable Indonesia menyesuaikan tantangan perihal faktor kebakaran dan efektivitas akses di dalam maupun di luar area gudang. Dalam hal ini respon rancangan bangunan gudang memberi jarak pada sisi kanan, kiri dan belakang sebesar 6 meter, selain digunakan untuk akses di dalam site hal ini juga mencegah potensi rambatan api dari bangunan sekitar. Kemudian menambah peningkatan dari sisi fitur MEP untuk proteksi kebakaran dengan pemasangan beberapa sistem seperti fire alarm, springkler dan indoor hydrant box.

Tunas Arsitek Mahakarya