Public Space projects
YPI Daar El-Kautsar
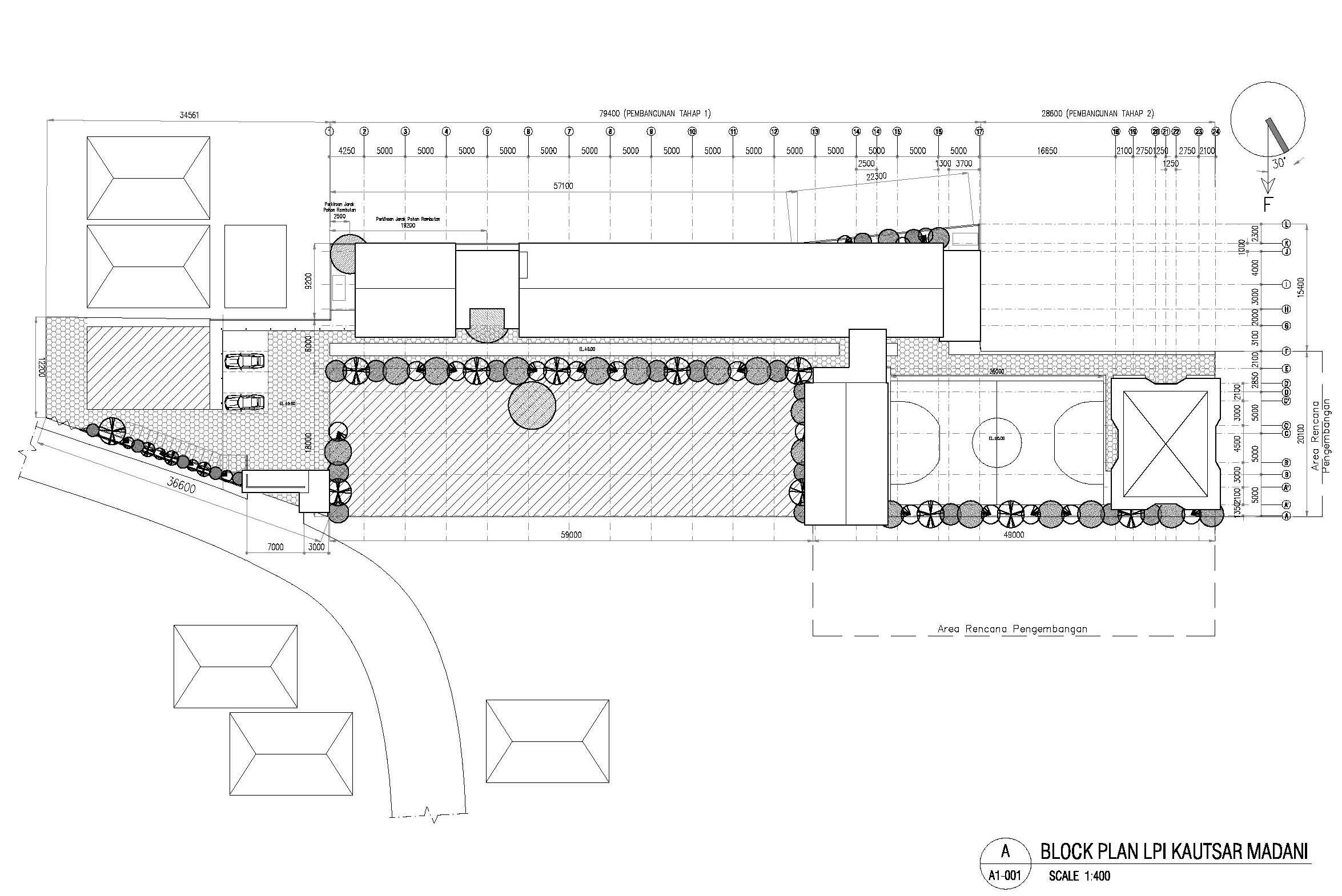
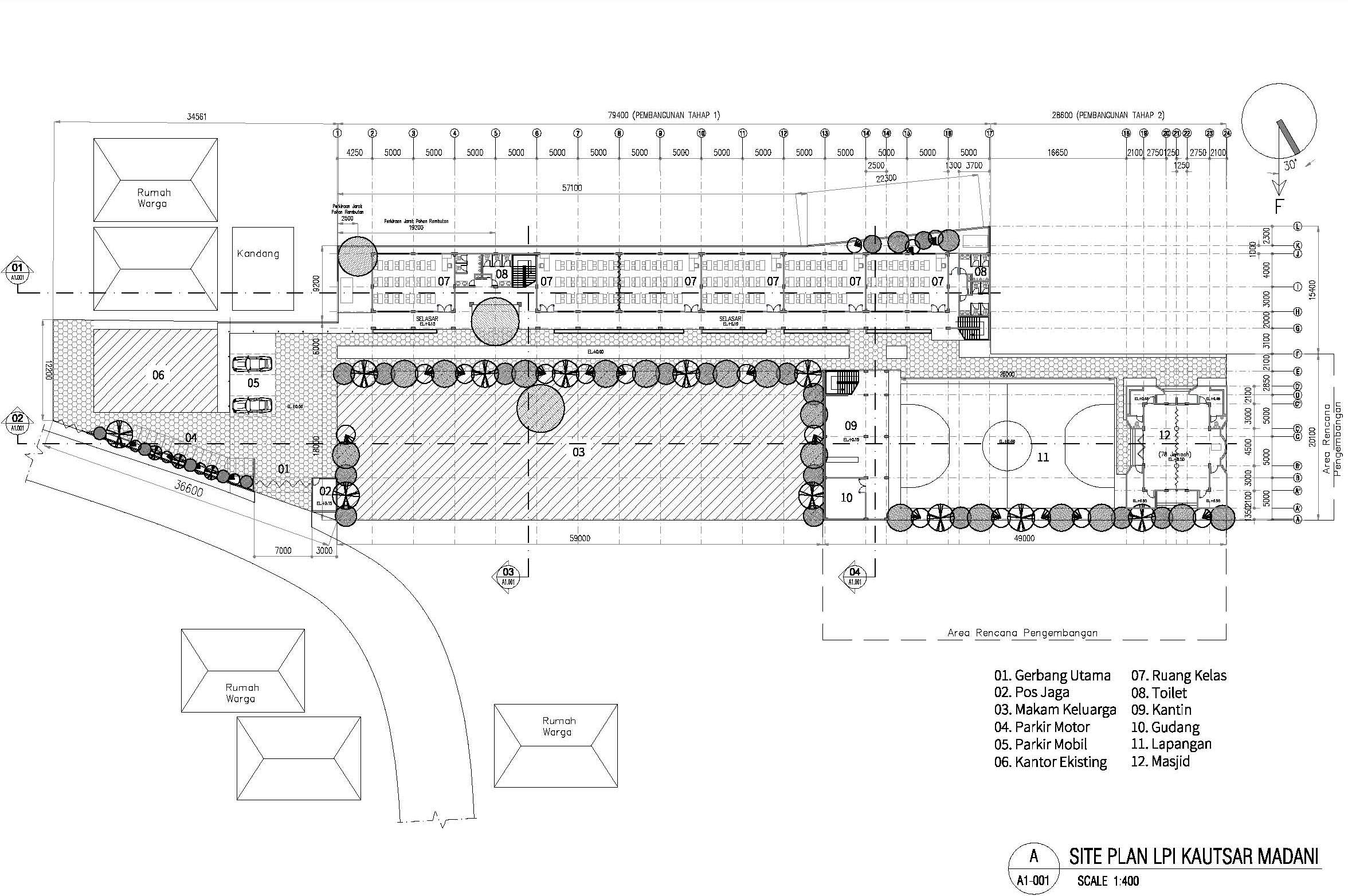
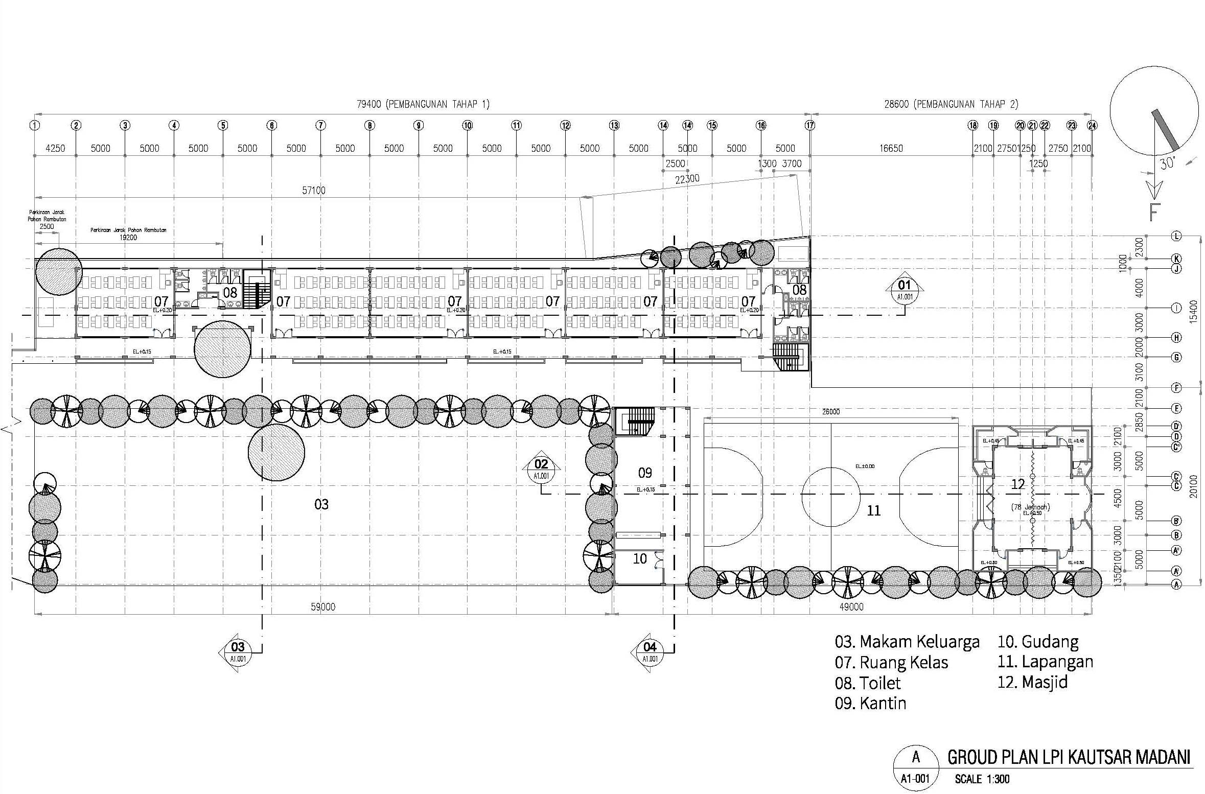
YPI Daar El-Kautsar | Tangerang | 2022
YPI Daar El-Kautsar Tangerang
Tunas Arsitek Mahakarya
Hi there! What can I help you? We will reply your messages soon.
Name
Email
Phone Number
Messages
Submit